項目介紹
項目名稱:東城一品
項目位置:錫滬路與錫東大道交叉口北側
項目面積:240平
項目定位:現代混搭
項目類型:頂復
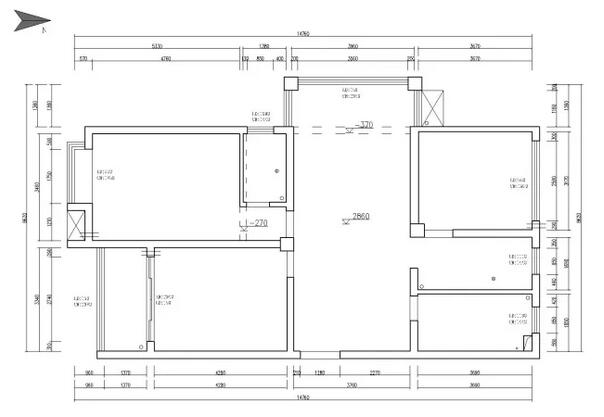
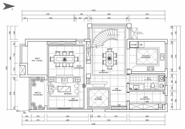
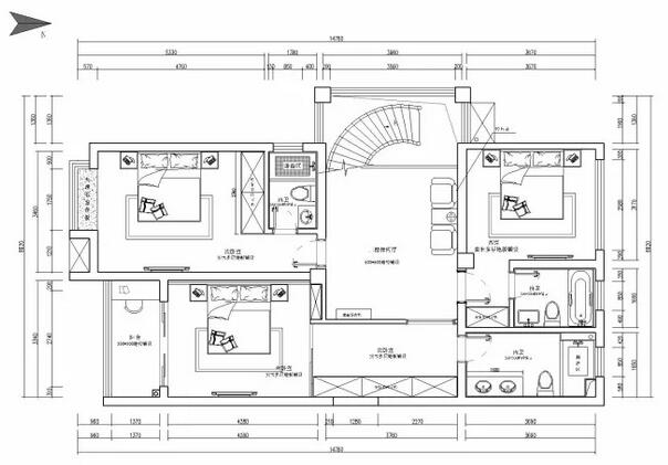
平面圖展示

原始結構圖

平面布置圖

平面布置圖
戶型優(yōu)缺點
此戶型為上下2層一樣的戶型
房子在改造之前每個空間太碎,動線凌亂
客餐廳面積過小
廚房面積小
沒有獨立儲物空間
客戶需求情況
本案是業(yè)主給女兒做婚房使用,要準備2-3房
女主比較喜歡簡潔大方,男主又喜歡古典的奢華,經過商討以后風格定位為現代混搭
效果圖賞析
一樓客餐廳
一樓廚房
一樓客廳
一樓前廳
一樓休息室
二樓過道
二樓臥室

設計師:陳龍飛
擅長風格:現代,美式,歐式等
設計理念:合理使用空間以小博大畫龍點睛創(chuàng)造美味家居生活!
"我們應站在客戶的角度,認真想想他需要什么、他的生活方式是什么,作為一個設計者應該怎么去提高他的生活品質。
你的專業(yè)知識和經驗能支撐你的技術層面,你的交流和捕捉能力決定了你和客戶的交流狀態(tài),把客戶當做戀人,他的需求,你要主動的去體會。"
預約裝修
紫蘋果聲明:
Copyright 2020 www.datartist.cn All Rights Reserved. 蘇ICP備18037275號-2
蘇公網安備32021302002167 上海紫蘋果裝飾有限公司無錫第一分公司版權所有
紫蘋果國際設計-品質贏得口碑